New California Classics: Cali Cod
Author:California Home and DesignCalifornia Cod architecture draws from the traditional East Coast aesthetic that originated in 17th-century New England, particularly the homes built by early settlers in Cape Cod, Massachusetts. Characterized by classic proportions, gabled roofs, shutters and a warm, inviting charm, this style has been adapted for the California climate and lifestyle, marrying tradition with practicality.
Hallmark exterior elements include shingle siding and shingle roofs, often in weathered gray or soft neutrals that harmonize with California’s coastal light. Flatwood trim surrounds doors and divided light windows, adding a subtle architectural detail that defines the elevation without ornamentation. Facades can be either symmetrical—evoking the classic colonial style—or asymmetrical, creating a more relaxed, coastal-casual appearance. Many California versions of Cape Cod homes incorporate intimate courtyards that enhance indoor-outdoor living, a feature well-suited to the region’s mild climate.

Brick and stone are used sparingly in this style, typically limited to low garden walls and chimney bases or to skirt the foundation. These materials are also effective when used as subtle accents in garden structures. A creamy pea gravel, used in the five-foot defensible space zone around the foundation, offers an elegant and fire-safe ground cover that complements the natural textures of the home and anchors the house visually, giving it an authentic presence.
Though traditionally constructed in wood, modern interpretations of Cape Cod architecture embrace noncombustible alternatives that mimic the appearance of natural wood. Products such as fiber cement siding (like HardiePlank), Boral TruExterior, CeDUR roof shingles or fire-rated engineered wood alternatives offer safety without compromising the aesthetic. These materials can also be used for trim details around windows and doors, preserving the integrity of the style while meeting California’s Wildland-Urban Interface (WUI) fire codes.

Plantings around a Cali Cod home should be low, layered and drought-tolerant, such as lavender, boxwood, rosemary and some ornamental grasses. These complement the house’s informality while respecting fire-safe landscape principles. Interior design concepts can range from traditional with paneled walls and classic moldings to more modern interpretations featuring clean Shaker cabinetry, wide-plank flooring and minimal detailing. This enduring style is beloved for its timeless appeal, offering comfort, proportion and a connection to American architectural roots, thoughtfully reimagined for California living.
–Story by Anne Carr, Christy Blumenfeld, Sandra Fox, Steve Rugo, Tyler Dowd



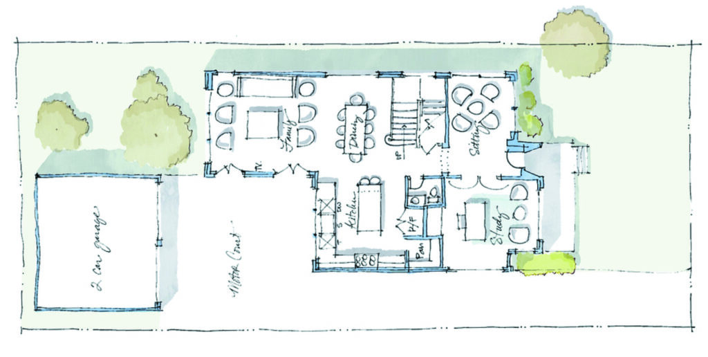
Blume Architecture designed these four elevations to represent some classical options in Cali Cod style.